Pending MLS# 26011943

4100 Forest Park Avenue, 206, St Louis City, MO 63108

Subdivision: West End Lofts

List Price: $325,000

2

Bedrooms

2

Baths

1,355

Area (sq.ft)

$240

Cost/sq.ft

1 Story

Type

5

Days on Market
Call Agent

Description

Once home to the steady hum of industry as a World’s Fair–era Model-T factory, this historic building now offers a different kind of energy - one of light, focus, and elevated urban living. Inside, this expansive and beautifully updated loft blends heritage architecture with modern refinement. Large north-facing windows flood the space with natural light, illuminating exposed brick, concrete ceilings, and original columns - an inspiring backdrop. Warm wood floors and curated finishes soften the industrial character, creating a home that feels both grounded and restorative. The open kitchen and living space is designed for effortless transitions - from early-morning coffee to relaxed evenings unwinding with friends. Gorgeous new quartz countertops, a new dishwasher, and refrigerator anchor the kitchen, while generous proportions allow the living area to feel airy yet intimate. Designer lighting and thoughtful updates elevate the space without sacrificing comfort. The primary suite offers a true retreat. Dual oversized walk-in closets provides exceptional storage, while the spa-inspired bath - freshly updated with crisp white subway tile and a walk-in shower - invites restoration and quiet recalibration. It’s a space designed for balance: sophisticated, calming, and ready when you are. Beyond the residence, West End Lofts delivers the convenience and lifestyle today’s resident values - a resort-style pool, high-end fitness center, guest suite for visiting family, billiards room, and pet-friendly living. Positioned in the heart of the Cortex Innovation District, you’re moments from SLU, BJC, WashU, and the region’s leading medical campuses - with The City Foundry, restaurants, coffee shops, and the vibrant Central West End just outside your door. Commute time shrinks. Life expands. This is more than a loft. It’s a space to restore, and recharge - right where your work and your life intersect. (Condo fee includes everything but electric.)

Property Information

List Price $ 325,000
Original Price $ 325,000
Status Pending
MLS# 26011943
Bedrooms 2
Full baths 2
Half baths 0
Main Floor Full Baths 2
Sq. Ft. Above 1,355
Lot Size
Acres
Subdivision West End Lofts
Municipality St Louis City
School District St. Louis City
County St Louis City
Property Type Residential
Style 1 Story
Style Description
Transaction Type
Special Conditions Standard
Type
Building Exterior Amenities Clubhouse,Elevator(s),Fitness Center,Game Room,Outside Management,Pool,Service Elevator(s)
Building Style Contemporary,Historic
Ownership Private
Special Description Standard
Appliances Some Stainless Steel Appliance(s),Dishwasher,Disposal,Exhaust Fan,Microwave,Range Hood,Gas Range,Refrigerator,Washer/Dryer Stacked

Additional Information

Elementary School Adams Elem.
Jr. High School Long Middle Community Ed. Center
Sr. High School Vashon High
Association Fee $786/Monthly
Architecture Contemporary,Historic
Construction Brick
Garage Spaces
Carport Spaces 1
Basement Description
Fireplace Type
Fireplace Location
Lot Dimensions
Special Areas
Cooling Ceiling Fan(s),Central Air,Electric
Sewer Public Sewer Sewer
Heating Electric
Water Public
Heat Source
Kitchen
Appliances Stainless Steel Appliance(s),Dishwasher,Disposal,Exhaust Fan,Microwave,Range Hood,Gas Range,Refrigerator,Washer/Dryer Stacked
Dining
Interior Decor
Property Tax $3,922

Map Location

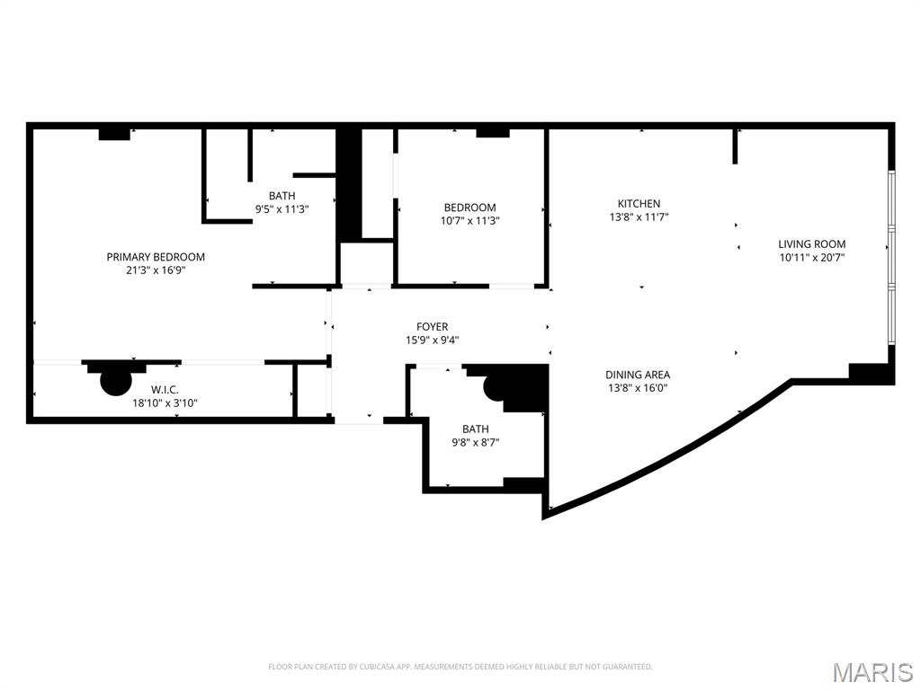
Rooms Dimensions

Room Dimensions (sq.rt)
Living Room (Level-Main) 11 x 21
Dining Room (Level-Main) 14 x 16
Kitchen (Level-Main) 14 x 12
Primary Bedroom (Level-Main) 21 x 17
Bedroom (Level-Main) 11 x 11

Change History

Listing Courtesy of Dielmann Sotheby's International Realty - [email protected]