Coming Soon MLS# 25069328

1823 Dover Trace Drive, Fenton, MO 63026

Subdivision: Manors At Legacy Pointe The

List Price: $740,000

4

Bedrooms

4

Baths

3,822

Area (sq.ft)

$194

Cost/sq.ft

2 Story

Type

10

Days on Market
Call Agent

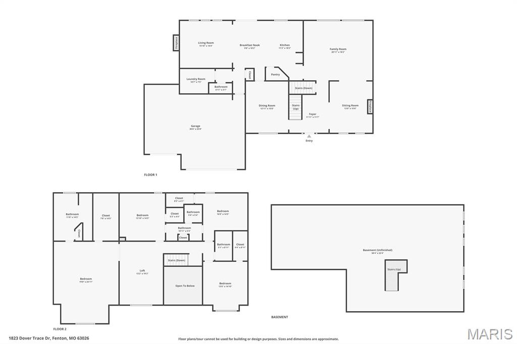
Description

Located within the highly sought-after Rockwood School District, this remarkable Legacy Pointe home invites you to relax and entertain by the custom natural gas fire pit completed with a stone paver patio. This distinguished brick and stone residence, crafted by Jones, features four bedrooms and exudes timeless elegance throughout. The impressive two-story foyer leads to the main living areas, which showcase hardwood flooring and graceful arched windows that invite abundant natural light. The kitchen is equipped with custom 42-inch cabinetry and quartz countertops, flowing effortlessly into an inviting hearth room with a gas fireplace. Upstairs, the home offers four bedrooms and three full bathrooms, including a spacious master suite with a generous walk-in closet and a luxurious bathroom with separate tub and shower. Additional amenities include custom closets, convenient first-floor laundry, an integrated alarm system, a three-car garage, aluminum fencing, and a comprehensive sprinkler system. This residence embodies a perfect blend of sophistication and practicality. This is a gem you don't want to miss out on!

Property Information

List Price $ 740,000
Original Price $ 740,000
Status Coming Soon
MLS# 25069328
Bedrooms 4
Full baths 3
Half baths 1
Main Floor Full Baths 3
Sq. Ft. Above 3,822
Lot Size
Acres 0
Subdivision Manors At Legacy Pointe The
Municipality Fenton
School District Rockwood R-VI
County St Louis
Property Type Residential
Style 2 Story
Style Description
Transaction Type
Special Conditions Standard
Type
Building Exterior Amenities Association Management
Building Style Other,Traditional
Ownership
Special Description Standard
Appliances Some

Additional Information

Elementary School Uthoff Valley Elem.
Jr. High School Rockwood South Middle
Sr. High School Rockwood Summit Sr. High
Association Fee $675/Annually
Architecture Other,Traditional
Construction Brick,Stone Veneer,Vinyl Siding
Garage Spaces 3
Carport Spaces 0
Basement Description Concrete,Unfinished
Fireplace Type Family Room
Fireplace Location
Lot Dimensions
Special Areas
Cooling Ceiling Fan(s),Central Air,Electric
Sewer Public Sewer Sewer
Heating Forced Air,Natural Gas
Water Public
Heat Source
Kitchen
Appliances
Dining
Interior Decor
Property Tax $7,978

Map Location

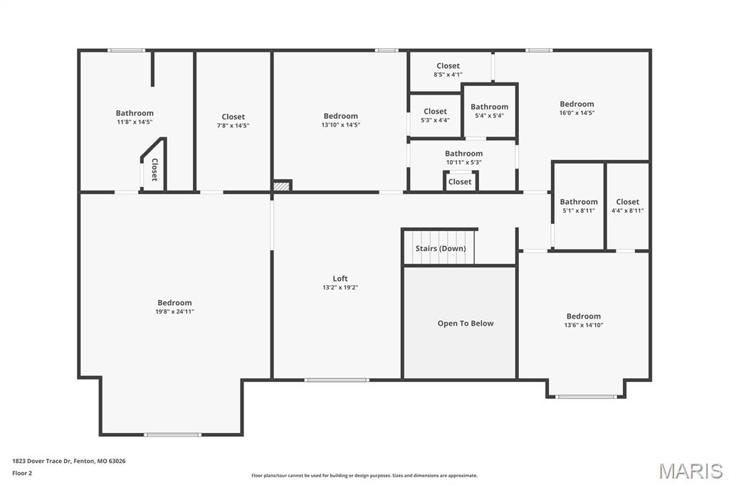
Rooms Dimensions

Room Dimensions (sq.rt)
Dining Room (Level-Main) 15 x 13
Living Room (Level-Main) 15 x 13
Family Room (Level-Main) 20 x 17
Kitchen (Level-Main) 14 x 13
Breakfast Room (Level-Main) 13 x 8
Hearth Room (Level-Main) 15 x 13
Primary Bedroom (Level-Upper) 24 x 19
Bedroom 2 (Level-Upper) 13 x 12
Bedroom 3 (Level-Upper) 13 x 11
Family Room (Level-Upper) 19 x 13
Laundry (Level-Main) 8 x 7

Listing Courtesy of Keller Williams Realty West - [email protected]