Pending MLS# 26009815

6129 Arbor Green Drive, Unincorporated, MO 63129

Subdivision: Arbor Crest Estates

List Price: $475,000

4

Bedrooms

3

Baths

3,243

Area (sq.ft)

$146

Cost/sq.ft

2 Story

Type

8

Days on Market
Call Agent

Description

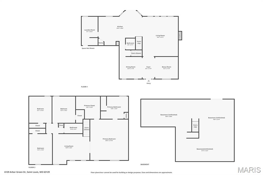
Discover a rare opportunity in a sought-after pocket of South St. Louis County where space, design, and setting come together effortlessly. With over 3,000 square feet of thoughtfully designed living space, this beautifully maintained 4-bedroom, 2.5-bath home offers the kind of layout and flow today’s discerning buyers appreciate. From the moment you step inside, rich wood flooring, natural light, and an inviting floor plan create an immediate sense of warmth and refinement. A welcoming living room at the front of the home provides a quiet space for conversation, while the hearth room invites relaxed evenings by the fire. The formal dining room is perfectly positioned for hosting holiday gatherings, dinner parties, and celebrations with ease. At the center of the home, the eat-in kitchen is designed for both function and entertaining, featuring generous counter space, a walk-in pantry, coffee bar area, and seamless connection to the outdoors. Bayed French doors lead to a spacious deck outfitted with Sunsetter shades and overlooking a fully fenced backyard — creating a private outdoor retreat ideal for morning coffee, summer evenings, and effortless entertaining. A spacious mudroom and laundry area just off the kitchen provides direct access to the attached two-car garage, keeping daily life organized and streamlined. Upstairs, four well-proportioned bedrooms offer comfort and flexibility. The primary suite serves as a peaceful escape at the end of the day, while additional bedrooms easily accommodate guests, work-from-home needs, or hobbies. Bathrooms are thoughtfully placed to support both privacy and convenience. The walk-out lower level, already plumbed for a future bath and filled with natural light, presents exceptional potential for additional finished living space tailored to your needs — whether recreation, fitness, or entertaining. Set in an area where availability is limited, this home offers an exceptional blend of space, livability, outdoor enjoyment, and future opportunity in a location buyers consistently seek. Experience the lifestyle this home was designed to offer — schedule your private showing today.

Property Information

List Price $ 475,000
Original Price $ 475,000
Status Pending
MLS# 26009815
Bedrooms 4
Full baths 2
Half baths 1
Main Floor Full Baths 2
Sq. Ft. Above 3,243
Lot Size
Acres 0
Subdivision Arbor Crest Estates
Municipality Unincorporated
School District Mehlville R-IX
County St Louis
Property Type Residential
Style 2 Story
Style Description
Transaction Type
Special Conditions Standard
Type
Building Exterior Amenities Common Ground
Building Style Traditional
Ownership
Special Description Standard
Appliances Some

Additional Information

Elementary School Point Elem.
Jr. High School Oakville Middle
Sr. High School Oakville Sr. High
Association Fee $315/Annually
Architecture Traditional
Construction Brick,Vinyl Siding
Garage Spaces 2
Carport Spaces 0
Basement Description 8 ft + Pour,Concrete,Full,Roughed-In Bath,Storage Space,Sump Pump,Unfinished,Walk-Out Access
Fireplace Type
Fireplace Location
Lot Dimensions 70X155
Special Areas
Cooling Central Air
Sewer Public Sewer Sewer
Heating Forced Air,Natural Gas
Water Public
Heat Source
Kitchen
Appliances
Dining
Interior Decor Ceiling Fan(s),Crown Molding,Double Vanity,Eat-in Kitchen,Entrance Foyer,High Ceilings,High Speed Internet,Kitchen Island,Pantry,Separate Dining,Separate Shower,Storage,Walk-In Closet(s),Walk-In Pantry
Property Tax $5,388

Map Location

Change History

Listing Courtesy of Keller Williams Realty St. Louis - [email protected]