Pending MLS# 26010465

3032 Valley Ridge Drive, St Peters, MO 63376

Subdivision: McClay Valley #3

List Price: $349,999

3

Bedrooms

2

Baths

1,362

Area (sq.ft)

$257

Cost/sq.ft

1 Story

Type

3

Days on Market
Call Agent

Description

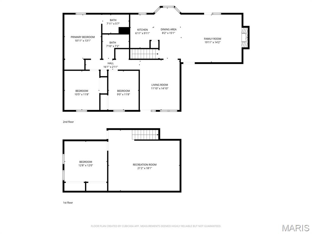
OPEN SUN 1-3PM! WOW, what a beautiful place to call HOME - Spacious, completely renovated 3 bedroom, 2 full bath ranch located just a short walk from beautiful Laurel Park and Francis Howell North High! Outstanding location with all main floor living and additional lower level finished space. You'll fall in love with the finishes throughout. Inviting covered front porch welcomes you inside - as you enter the great living room with a great flow to the dining & kitchen area - followed by the family room with vaulted ceilings and a fireplace! Kitchen highlights are brand new countertops, plenty of cabinetry, new appliances and a pantry. Beautiful primary main floor bedroom featuring a great private full bath. Two big sized bedrooms and an additional full bath complete the main floor. Lower level has partially been finished with a big recreation/ bonus room or additional family (could also be used as an office, gym or hobby/ play area) as well as a separate sleeping room!! This basement also features an unfinished area with lots room for storage or workshop area. Additional highlights are the big 2-car garage and the private backyard - perfect for relaxing, gardening, bbq hangouts, pets or entertaining! Move-in Ready for you - comes with passed occupancy AND a Home Warranty. Nestled in a quiet neighborhood with access to a scenic community pond, it's an ideal setting for peaceful living. CALL NOW!

Property Information

List Price $ 349,999
Original Price $ 349,999
Status Pending
MLS# 26010465
Bedrooms 3
Full baths 2
Half baths 0
Main Floor Full Baths 2
Sq. Ft. Above 1,362
Lot Size
Acres 0
Subdivision McClay Valley #3
Municipality St Peters
School District Francis Howell R-III
County St Charles
Property Type Residential
Style 1 Story
Style Description
Transaction Type
Special Conditions Standard
Type
Building Exterior Amenities None
Building Style Ranch
Ownership
Special Description Standard
Appliances Some Dishwasher,Range

Additional Information

Elementary School Henderson Elem.
Jr. High School Hollenbeck Middle
Sr. High School Francis Howell North High
Association Fee $0/None
Architecture Ranch
Construction Other
Garage Spaces 2
Carport Spaces 0
Basement Description Partially Finished,Full,Other,Sleeping Area,Storage Space
Fireplace Type Family Room
Fireplace Location
Lot Dimensions
Special Areas
Cooling Ceiling Fan(s),Central Air
Sewer Public Sewer Sewer
Heating Forced Air
Water Public
Heat Source
Kitchen
Appliances Dishwasher,Range
Dining
Interior Decor Custom Cabinetry,Eat-in Kitchen,High Speed Internet,Kitchen/Dining Room Combo,Pantry,See Remarks,Stone Counters,Storage,Vaulted Ceiling(s)
Property Tax $3,393

Map Location

Change History

Listing Courtesy of EXP Realty, LLC - [email protected]